编辑推荐
					本书强调从实践中学习,一一套实际施工图纸为例讲解读图的要点,对图纸中难易理解的地方进行详细解读。能够帮助刚刚进入这个领域的人系统识图的基本知识并掌握建筑工程识图的本领。
				
			图书简介
					本书内容旨在让读者了解施工图的基本知识,正确理解设计意图并看懂施工图纸,从建筑施工图、结构施工图、电气施工图、防火说明、给排水施工图及暖通施工图的原貌展现,帮助读者解决识图难的问题。适合建筑技术人员、工程监理人员和工程管理人员阅读学习。
				
			图书目录
						第1章  某小学建筑施工图识图实例
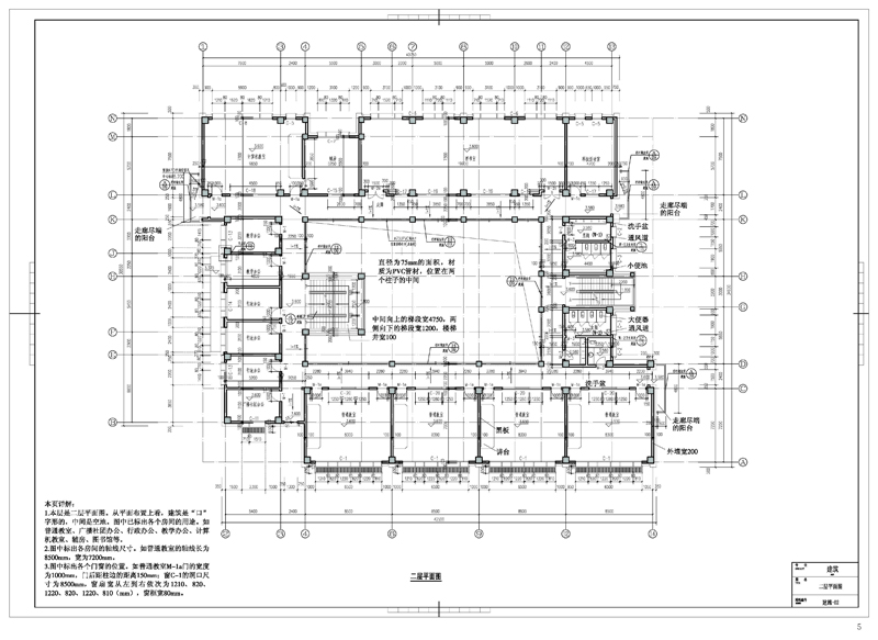
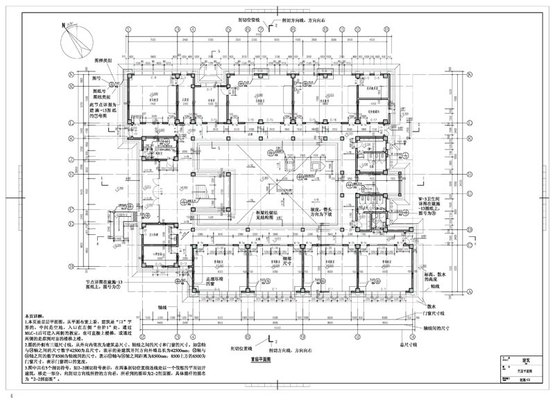
1.1 建筑施工图
1.2 结构施工图
1.3 防火设计专篇
1.4 给排水施工图
1.5 电气施工图
1.6 采暖施工图
1.7 施工图中常见的做法
第2章 建筑识图基本知识
2.1 房屋建筑制图统一标准
2.2 结构施工图基本知识
参考文献
					
				1.1 建筑施工图
1.2 结构施工图
1.3 防火设计专篇
1.4 给排水施工图
1.5 电气施工图
1.6 采暖施工图
1.7 施工图中常见的做法
第2章 建筑识图基本知识
2.1 房屋建筑制图统一标准
2.2 结构施工图基本知识
参考文献

								
								
								
								
								