1.系统实用,内容丰富,图文并茂,浅显易懂。
2. 既融入编者多年的工作经验,又配有大量识图实例,具有内容简明实用,重点突出,与实际相结合的特点。
				
			编辑推荐
图书简介
					本书共分五章,内容主要包括建筑工程基础知识、投影基础、土木建筑施工图识读、土木建筑结构施工图识读、土木建筑工程图实例等。
本书系统实用,内容丰富,图文并茂,浅显易懂,既可供土木建筑工程技术人员使用,也可作为相关专业大中专院校师生学习参考。
			本书系统实用,内容丰富,图文并茂,浅显易懂,既可供土木建筑工程技术人员使用,也可作为相关专业大中专院校师生学习参考。
图书目录
						第一章 建筑工程基础知识
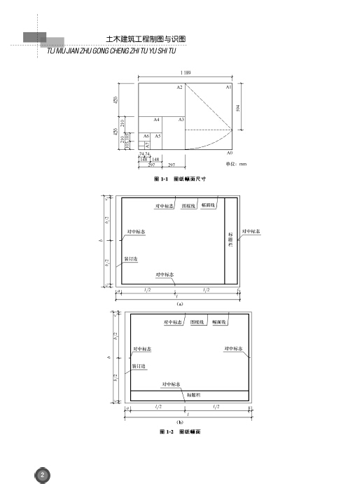
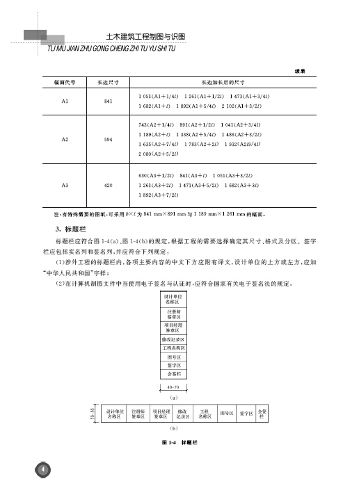
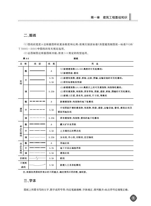
第一节 建筑工程制图标准
第二节 木结构的表示方法
第三节 混凝土结构的表示方法
第四节 图例
第二章 投影基础
第一节 投影概念
第二节 平行投影的性质
第三节 形体的三面投影
第四节 平面立体的投影
第五节 形体的三面投影
第六节 立体投影
第七节 轴侧投影
第八节 组合体投影
第三章 土木建筑施工图识读
第一节 土木建筑总平面图
第二节 土木建筑平面图
第三节 建筑立面图
第四节 土木建筑剖面图
第五节 土木建筑详图
第六节 土木 建 筑 图 的 绘 制
第四章 土木建筑结构施工图识读
第一节 基础图
第二节 结构平面图
第三节 构件结构详图
第四节 平法结构施工图
第五节 门式刚架施工图
第六节 钢网架结构施工图
第七节 钢框架结构施工图
第五章 土木建筑工程图实例
某小区住宅工程
参考文献
				第一节 建筑工程制图标准
第二节 木结构的表示方法
第三节 混凝土结构的表示方法
第四节 图例
第二章 投影基础
第一节 投影概念
第二节 平行投影的性质
第三节 形体的三面投影
第四节 平面立体的投影
第五节 形体的三面投影
第六节 立体投影
第七节 轴侧投影
第八节 组合体投影
第三章 土木建筑施工图识读
第一节 土木建筑总平面图
第二节 土木建筑平面图
第三节 建筑立面图
第四节 土木建筑剖面图
第五节 土木建筑详图
第六节 土木 建 筑 图 的 绘 制
第四章 土木建筑结构施工图识读
第一节 基础图
第二节 结构平面图
第三节 构件结构详图
第四节 平法结构施工图
第五节 门式刚架施工图
第六节 钢网架结构施工图
第七节 钢框架结构施工图
第五章 土木建筑工程图实例
某小区住宅工程
参考文献

								
								
								
								
								
								