1、诙谐有趣的插图,让楼梯设计变得生动可感;
2、简练的解说文字,直击重点。
3、名家经典案例,展现楼梯的哲学与思考。
4、啼笑皆非的错误楼梯,在一笑之余,掌握设计重点。
编辑推荐
图书简介
本书为刚刚涉足建筑设计、室内设计等相关设计专业的学生,提供入门学习。通过大量的学生作业实例,折射楼梯设计时的各种各样的问题,并加以解说,提供解决方案,引导读者思考楼梯设计的新应用。
图书目录
前言
1住宅中的楼梯
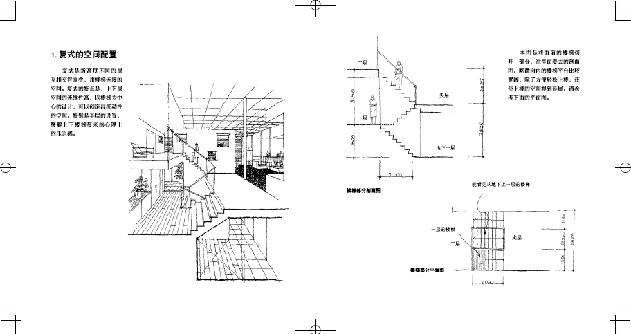
1.复式的空间配置
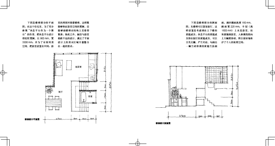
2.楼梯平台
3.环绕天井的旋转楼梯
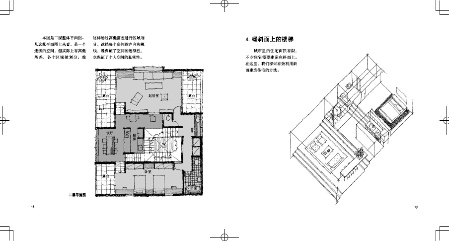
4.缓斜面上的楼梯
Column 著名住宅的楼梯① 轻井泽的山庄(吉村山庄)
2楼梯的种类
1.了解楼梯的种类
2.楼梯的印象
Column 著名住宅的楼梯② 管野箱式住宅
3楼梯的基础知识
1.楼梯各部分的名称
2.楼梯的坡度
3.楼梯的尺寸
4.楼梯上下行的标记
5.剖切线
6.楼梯的构造
7.有效利用楼梯下面的空间
Column 著名住宅的楼梯③ 住吉的长屋
4错误的楼梯
1.梁是障碍物吗?
2.二楼的楼板是障碍物吗?①
3.二楼的楼板是障碍物吗?②
4.踏步数足够吗?
5.老鼠楼梯?
6.随机楼梯?
学生的作品①
学生的作品②
5 楼梯的画法
1.直跑式楼梯的画法①(确定踏面和踢面以后再画)
2.直跑式楼梯的画法②(确定坡度、踏步数后再画)
3.楼梯间的平面图、剖面图的画法
4.对折楼梯的画法
5.螺旋楼梯的画法
Column 著名住宅的楼梯④ 萨伏瓦别墅
6 房间格局中的楼梯
1.在玄关放置楼梯①
2.在玄关放置楼梯②
3.在起居室放置楼梯
4.在走廊放置楼梯
总结与实例
7狭小住宅和异形平面的楼梯
1.复式狭小住宅的楼梯
2.长屋住宅的楼梯
3.三角平面住宅的楼梯
4.角落的处理
Column 著名住宅的楼梯⑤ 塔之家
8创意楼梯
1.合板组合楼梯
2.木制楼梯
3.有储藏功能的楼梯
9楼梯设计练习
问题
答案
结束语
作者简介
1住宅中的楼梯
1.复式的空间配置
2.楼梯平台
3.环绕天井的旋转楼梯
4.缓斜面上的楼梯
Column 著名住宅的楼梯① 轻井泽的山庄(吉村山庄)
2楼梯的种类
1.了解楼梯的种类
2.楼梯的印象
Column 著名住宅的楼梯② 管野箱式住宅
3楼梯的基础知识
1.楼梯各部分的名称
2.楼梯的坡度
3.楼梯的尺寸
4.楼梯上下行的标记
5.剖切线
6.楼梯的构造
7.有效利用楼梯下面的空间
Column 著名住宅的楼梯③ 住吉的长屋
4错误的楼梯
1.梁是障碍物吗?
2.二楼的楼板是障碍物吗?①
3.二楼的楼板是障碍物吗?②
4.踏步数足够吗?
5.老鼠楼梯?
6.随机楼梯?
学生的作品①
学生的作品②
5 楼梯的画法
1.直跑式楼梯的画法①(确定踏面和踢面以后再画)
2.直跑式楼梯的画法②(确定坡度、踏步数后再画)
3.楼梯间的平面图、剖面图的画法
4.对折楼梯的画法
5.螺旋楼梯的画法
Column 著名住宅的楼梯④ 萨伏瓦别墅
6 房间格局中的楼梯
1.在玄关放置楼梯①
2.在玄关放置楼梯②
3.在起居室放置楼梯
4.在走廊放置楼梯
总结与实例
7狭小住宅和异形平面的楼梯
1.复式狭小住宅的楼梯
2.长屋住宅的楼梯
3.三角平面住宅的楼梯
4.角落的处理
Column 著名住宅的楼梯⑤ 塔之家
8创意楼梯
1.合板组合楼梯
2.木制楼梯
3.有储藏功能的楼梯
9楼梯设计练习
问题
答案
结束语
作者简介










