那些年,我们一起追过的迈耶
从初入建筑系的大学生,到在建筑行业闯荡多年的建筑师,每个拥有建筑梦的人,都应该会有几个心仪的建筑偶像用来膜拜并激励自己吧。时光荏苒,无论是经历五年千锤百炼的建筑设计的基础夯实,还是投身建筑行业后的摸爬滚打,相信大家对建筑,对建筑大师都有全新的理解和感悟。 作为曾经最年轻的普利策获奖大师,理查德·迈耶以其对光影的表现闻名于世! 很多中国建筑师的学习生涯,是从模仿理查德·迈耶的建筑设计手法开始的。此次建筑大师作品我们隆重推出,那些年我们一起追过的迈耶!
从“史密斯住宅”这一成名代表作开始,理查德·迈耶在49岁时便获得了建筑界的至高荣誉普利策奖,曾是该奖最年轻的得主。如今已然80岁高龄的他依然痴迷于光线、环境与建筑的关系,并且不断以“白色”作为标志性符号进行着设计。迈耶曾经表达过“建筑是一个糟糕的生意”的观点,他认为如果想做生意,建筑可不应该是你的第一选择,“你必须发自内心的想去从事这一行”。
理查德·迈耶建筑师事务所已经成立50余年。他坚持了 50年的设计事业和不变的设计方向,标示着一种持续积累、完善逻辑、非碎片化、非暂时消费的建筑师发展之路; 50年的岁月刻度,提示着我们中国建筑师,那还未曾被深刻浸润就已随时代匆匆流逝的现代主义设计传统。“伴随着当今世界上发生的一切变化,建筑持续以恒地以其美学特质感动着我们,就如同过去那些伟大的建筑一样,这一点从未改变”。“ 我们对现状很满意。”80岁高龄的理查德·迈耶仍然充满希望,“现在虽然不是好时候,但也没那么糟。”
编辑推荐
图书简介
理查德·迈耶丛书共计6卷,收录了理查德·迈耶以及迈耶工作室近50年来的全部设计作品。迈耶设计的产品都颇为简练,既包括居家设计也包括商用设计。他设计的作品最大的特点是永远有自己的特性而不是在风格上受别人的影响而迷惑。由于其大胆的风格和值得称颂的忠诚,迈耶创造出颇为独特的粗壮风格。为了在展示方面做得更好,他将斜格、正面以及明暗差别强烈的外形等方面和谐地融合在一起。迈耶的作品以“顺应自然”的理论为基础,表面材料常用白色,以绿色的自然景物衬托,使人觉得清新脱俗,他还善于利用白色表达建筑本身与周围环境的和谐关系。在建筑内部,他运用垂直空间和天然光线在建筑上的反射达到富于光影的效果,他以新的观点解释旧的建筑,并重新组合几何空间。
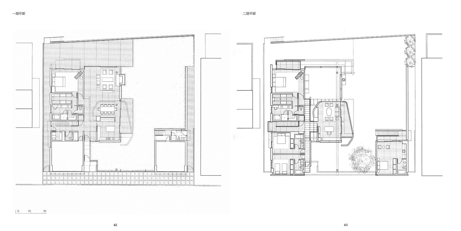
本卷为第四卷,是理查德迈耶从事建筑设计40周年的纪念版,由著名建筑评论家肯尼斯·普兰肯顿做评论推荐。主题为迈耶的转型,介绍了私人建筑和公共建筑及项目,包括知名的千禧教堂、世贸中心纪念广场、耶鲁大学艺术史系教学楼和图书馆等。项目借助平面图、剖面图、立面图以及模型等展现了每个项目的特点,体现了不同时期·迈耶设计的变化。
本卷为第四卷,是理查德迈耶从事建筑设计40周年的纪念版,由著名建筑评论家肯尼斯·普兰肯顿做评论推荐。主题为迈耶的转型,介绍了私人建筑和公共建筑及项目,包括知名的千禧教堂、世贸中心纪念广场、耶鲁大学艺术史系教学楼和图书馆等。项目借助平面图、剖面图、立面图以及模型等展现了每个项目的特点,体现了不同时期·迈耶设计的变化。
图书目录
目录 Contents
序
Preface 4
迈耶的转型
Meier in Transition 6
形式与风格
On Form and Style 12
私人建筑及工程项目
Private Buildings and Projects 16
诺伊格鲍尔住宅
Neugebauer House 18
海滨住宅
Beach House 38
乡村住宅
Country House 58
佩里街173/176号双塔楼
173/176 Perry Street 68
寇家安公寓
Kojaian Apartment 78
乔伊公寓
Joy Apartment 84
查尔斯街公寓
Charles Street Apartments 94
瑞克麦斯住宅
Rickmers Residence 108
公共建筑及工程项目
Public Buildings and Projects 116
奇塔代拉桥
Cittadella Bridge 118
卡姆登医疗中心
Camden Medical Center 130
艾斯利普镇美国法院和联邦大楼
United States Courthouse
and Federal Building 140
桑德拉·戴·奥康纳美国法院
Sandra Day O’Connor
United States Courthouse 168
皮克-克洛彭堡公司旗下的百货商店
Peek & Cloppenburg
Department Store 188
瑞克麦斯海运公司总部
Reederei Rickmers
Headquarters 200
可能性思考国际中心
International Center for
Possibility Thinking 216
圣何塞市民活动中心
San Jose Civic Center 230
加州大学洛杉矶分校
布罗劳德艺术中心
UCLA Broad Art Center 238
汉斯阿尔普博物馆
Hans Arp Museum 246
FSM东河总体规划
FSM East River Master Plan 252
布尔达收藏博物馆
Burda Collection Museum 256
表演艺术中心
Performing Arts Center 266
耶鲁大学艺术史系教学楼和图书馆
History of Art and Arts Library
Building,Yale University 280
林肯表演艺术中心艾弗里·费雪厅
Avery Fisher Hall,
Lincoln Center 294
世贸中心纪念广场
World Trade Center
Memorial Square 314
66号餐厅
66 Restaurant 332
利多-迪耶索洛酒店和住宅综合体
Jesolo Lido Hotel and
Residential Complex 344
千禧教堂
Jubilee Church 348
后记——建筑的连贯性
Postscript—Questions of
Consistency 382
理查德·迈耶简介
Biography 386
作品年代表
Bibliographical Chronology 388
参考文献
Bibliography 416
合作者
Collaborators 424
摄影师
Photographers 424
序
Preface 4
迈耶的转型
Meier in Transition 6
形式与风格
On Form and Style 12
私人建筑及工程项目
Private Buildings and Projects 16
诺伊格鲍尔住宅
Neugebauer House 18
海滨住宅
Beach House 38
乡村住宅
Country House 58
佩里街173/176号双塔楼
173/176 Perry Street 68
寇家安公寓
Kojaian Apartment 78
乔伊公寓
Joy Apartment 84
查尔斯街公寓
Charles Street Apartments 94
瑞克麦斯住宅
Rickmers Residence 108
公共建筑及工程项目
Public Buildings and Projects 116
奇塔代拉桥
Cittadella Bridge 118
卡姆登医疗中心
Camden Medical Center 130
艾斯利普镇美国法院和联邦大楼
United States Courthouse
and Federal Building 140
桑德拉·戴·奥康纳美国法院
Sandra Day O’Connor
United States Courthouse 168
皮克-克洛彭堡公司旗下的百货商店
Peek & Cloppenburg
Department Store 188
瑞克麦斯海运公司总部
Reederei Rickmers
Headquarters 200
可能性思考国际中心
International Center for
Possibility Thinking 216
圣何塞市民活动中心
San Jose Civic Center 230
加州大学洛杉矶分校
布罗劳德艺术中心
UCLA Broad Art Center 238
汉斯阿尔普博物馆
Hans Arp Museum 246
FSM东河总体规划
FSM East River Master Plan 252
布尔达收藏博物馆
Burda Collection Museum 256
表演艺术中心
Performing Arts Center 266
耶鲁大学艺术史系教学楼和图书馆
History of Art and Arts Library
Building,Yale University 280
林肯表演艺术中心艾弗里·费雪厅
Avery Fisher Hall,
Lincoln Center 294
世贸中心纪念广场
World Trade Center
Memorial Square 314
66号餐厅
66 Restaurant 332
利多-迪耶索洛酒店和住宅综合体
Jesolo Lido Hotel and
Residential Complex 344
千禧教堂
Jubilee Church 348
后记——建筑的连贯性
Postscript—Questions of
Consistency 382
理查德·迈耶简介
Biography 386
作品年代表
Bibliographical Chronology 388
参考文献
Bibliography 416
合作者
Collaborators 424
摄影师
Photographers 424















