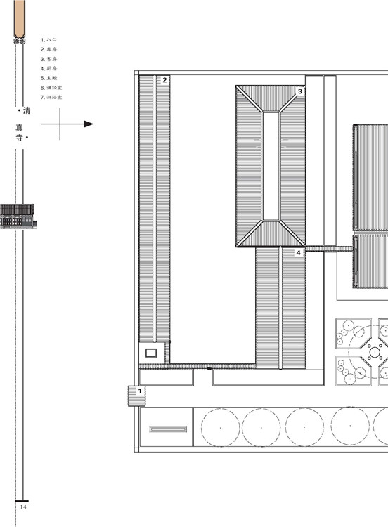
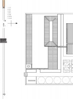
本书将作者七年的测绘成果加以整理、遴选、完善,这些测绘图是大连理工大学建筑学院师生们辛劳和汗水的结晶,是一份珍贵的资料集,展示了清真寺整体与局部的结构、造型与细部,尽可能多地保留了清真寺测绘的原始数据。本测绘集不仅可为古建筑研究爱好者所用,也可以为从事古建筑修复、保护与传统风格设计的建筑师们提供较为丰富的资料,对我国大连地区历史文化遗产的保护具有深厚意义。
“知古不知今,谓之陆沉”;“知今不知古,谓之盲瞽”
——东汉*王充《论衡·谢短篇》
作为建筑出版编辑的“我们”,常被当下行业的浮躁打乱了节奏;困在城市中的“我们”,也被生生地切断了与自然、古今的联系…….不止于编辑,这是大多数“我们”的写照。
也有例外,那就是“他们”。
“他们”是大连那个美好的海滨城市的一届建筑学的师生,“他们”常带上尺子和画笔,在春花秋实的美好季节,到身边最古老的建筑里去测绘。
“他们”测绘,每一跟线都至诚至真,每一幅画都意蕴绵长;“他们”解读,与建筑对话,从已有的没有的林林总总的片面讯息里去整理那些建筑的故事,虽然艰难却也有趣。
“他们”在这些古老的遗迹中间,在一地缤纷花瓣或一地萧瑟秋叶里,踏遍那些已经存在千百年的砖、石,丈量过每一分的门楣窗阑。触摸过历史的质感,解读过每一个匾额和碑文…….用特别的方式与千百年来的匠人和文人心意相通。
“他们”曾经测绘过的古建:普化寺 • 天后宫,城山古城 • 法华寺,清泉寺,关帝庙,三清观,横山书院 • 永丰塔,清真寺,响水观,朝阳寺 • 石鼓寺,观音阁……
“他们”终于知道没有“历史”的大连原来还有这么多“历史”建筑,且非常古老。不太善于保护“古建”的大连也有保护得很好的“古建”,只是大家没有看到。
“他们”通过“测”、通过“绘”,通过“梳”、通过“理”,收获到的绝对不止于“知识”本身。
“他们”的队伍越来越庞大,从当初大连理工一个院校的一届师生,辐射到周边有建筑学专业的所有高校,再辐射到上下十余届的学生……
“他们”这一测,就是七年…….
在佛家,七为小圆满。当“他们”测绘到第七个年头的时候,遇到了“我们”,因为这套古建筑十书要出版了。也许出版本身,就是“小圆满”。
但此书的出版,波折不断。宗教问题的细致审查,重大选题的层层申报,历史数据的点点复核,特殊纸张的一次次选调……也许不经历“九九八十一难”,“真经”就不会显身:8个月的紧张工作,作者、编辑、审读、总社专家、新闻出版署、印务、印厂、发行等十几个部门的协同运作……值得开心的是,这一切都已经解决。
作为统筹全盘的策划编辑的“我们”,加上沉浸在“古”书中,心性亦改变很多,某种意义上,也成了“他们”的一部分。很开心这种融入,更开心看到这样一套好书即将面世了。
这套书说大也大,包含了大连的10个古建筑;说小也小,于全中国的测绘书来说,只是海洋里的一滴水。但相信这套书只是一个开端,会有更多的古建筑、民族建筑的史料和图书渐渐被测绘和整理出来,变成这样的一套好书,在世间留传。
编辑推荐
图书简介
本书将作者七年的测绘成果加以整理、遴选、完善,这些测绘图是大连理工大学建筑学院师生们辛劳和汗水的结晶,是一份珍贵的资料集,展示了清真寺整体与局部的结构、造型与细部,尽可能多地保留了清真寺测绘的原始数据。本测绘集不仅可为古建筑研究爱好者所用,也可以为从事古建筑修复、保护与传统风格设计的建筑师们提供较为丰富的资料,对我国大连地区历史文化遗产的保护具有深厚意义。
清真寺是伊斯兰教的寺院,如今,在中国的许多地方,都可以看到形式各异的清真寺。
清初,山东、河北地区的回民先后挑担来复州城经商落户。顺治六年, 他们筹集银两在城西南隅买下一块菜地和三间草房作清真寺,后历经扩建,此处是辽南最早建成的清真寺。
曾任山西省主考的热河穆斯林王廷相书写的“还朴归真”匾额,古朴静寂,见证了古城回族人的信仰——繁华落尽,平淡归真。
“长风破浪会有时,直挂云帆济沧海”,是李白放弃功名后的呐喊;“采菊东篱下,悠然见南山”,是陶潜告别过去的我心依旧。花开荼蘼迷人眼,功名利禄终成空。还朴归真,才能不在清醒与睡梦中放逐。
在入世与出世里游走,在爱与失爱里轮回,找回最初的自己。独爱那一抹潜隐的幽香,独恋那未经尘世烟火的清欢。闲看云起云落,醉听鸟语虫鸣。大道至简,夫复何求。
风月无声,心若琉璃。轻风呢喃,琴声婉转,那些镌刻在流年里的故事,于花香云淡的夜里,点缀前行的脚步,温润生命的美丽。
风起云涌翻手覆掌间,叱咤风云经年,然后归矣,万物循环,返璞归真。智者不语,达者无言,笑看此朝英雄人物呼风唤雨,改天换地。捧一杯清茶,掬一缕花香,乐享天伦,悠然望南山,且看红尘何变换,唯留传说颂唱不断。
清真寺是伊斯兰教的寺院,如今,在中国的许多地方,都可以看到形式各异的清真寺。
清初,山东、河北地区的回民先后挑担来复州城经商落户。顺治六年, 他们筹集银两在城西南隅买下一块菜地和三间草房作清真寺,后历经扩建,此处是辽南最早建成的清真寺。
曾任山西省主考的热河穆斯林王廷相书写的“还朴归真”匾额,古朴静寂,见证了古城回族人的信仰——繁华落尽,平淡归真。
“长风破浪会有时,直挂云帆济沧海”,是李白放弃功名后的呐喊;“采菊东篱下,悠然见南山”,是陶潜告别过去的我心依旧。花开荼蘼迷人眼,功名利禄终成空。还朴归真,才能不在清醒与睡梦中放逐。
在入世与出世里游走,在爱与失爱里轮回,找回最初的自己。独爱那一抹潜隐的幽香,独恋那未经尘世烟火的清欢。闲看云起云落,醉听鸟语虫鸣。大道至简,夫复何求。
风月无声,心若琉璃。轻风呢喃,琴声婉转,那些镌刻在流年里的故事,于花香云淡的夜里,点缀前行的脚步,温润生命的美丽。
风起云涌翻手覆掌间,叱咤风云经年,然后归矣,万物循环,返璞归真。智者不语,达者无言,笑看此朝英雄人物呼风唤雨,改天换地。捧一杯清茶,掬一缕花香,乐享天伦,悠然望南山,且看红尘何变换,唯留传说颂唱不断。
图书目录
历史沿革10
院落组合12
辅助建筑30
主体构架32
大木作梁架44
小木作装修48
艺术价值52
参考文献54
后记55
院落组合12
辅助建筑30
主体构架32
大木作梁架44
小木作装修48
艺术价值52
参考文献54
后记55












