本书的主旨是将草图作为一种工作方式,作为眼睛和大脑在方案创造过程中共同参与的媒介,作为方案内容交流与描述的一种载体。书中介绍了不同的绘画技巧和绘画表现手段,并将每种绘画的效果用丰富的实例展现了出来,由浅入深,从原理到实践,使读者能够对建筑空间草图绘画有一个系统全面的认知,并通过大量的练习,使之融会贯通。书中给出了学习空间环境绘画的建议,由此我们也应该知道:不间断地练习,是学习的手段,也是发展个人能力和个人风格的必经之路。
头脑中抽象的创意和纸上草图式的创意之间的对话,会引起一场持续的思想与图画之间的交流,这对于解决方案设计任务来说是不可避免的,也是充满乐趣的。同时,草图可以使每一阶段的设计方案都清楚可见,人们在回顾设计过程时,对整个设计方案的发展能有更加切身的体会。
				
			编辑推荐
图书简介
					建筑与绘画同属艺术,自古就有将建筑、绘画、雕塑合称为三大造型艺术的说法,许多建筑师都善于绘画,甚至一些建筑师在绘画方面的造诣与画家并无二致。
但建筑师有一种独特绘画方式,不是对已有建筑的表达,而是对从无到有、无中生有的建筑的表达,在建筑师的创造性活动中,不断地需要将头脑中的构想图形化,形体、空间,甚至场地氛围都需要通过这样的图画来进行表达,因为这是一种呈现设计意图的最为便捷的方式,这是独属于建筑师的一种绘画方式。本书就介绍了这样一种绘图的方式,在作者循序渐进的教导中,初学者会发现,掌握这样一种绘画方式,既非毫无规律可循,又是一件饶有兴趣的事情,即使是在电脑技术飞速发展的今天,这种绘画方式仍旧是建筑思维表达的最为有力的方法之一。
有关钢笔画、效果图画法的书籍很多,但与建筑师的最富有职业特点的绘画方式直接相关的书籍却非常之少,相信这本书会对许多建筑师和建筑类专业的学生们有很大的帮助。
本书提供了学习空间绘画这一技艺的指导和建议,并可以使读者充满乐趣地进行实践。草图表达的步骤方法从简单易懂的规则中发展出来,并通过能激发读者兴趣的实例图画进行说明。
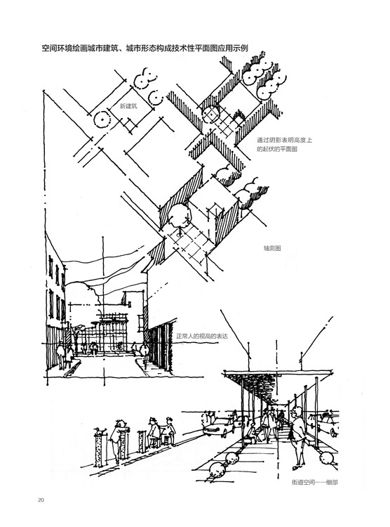
建筑思维的草图表达在建筑设计和城市设计过程中扮演着非常重要的角色。空间草图可以作为有形的论据,向业外的人士介绍并展示设计方案的形态构成。
			但建筑师有一种独特绘画方式,不是对已有建筑的表达,而是对从无到有、无中生有的建筑的表达,在建筑师的创造性活动中,不断地需要将头脑中的构想图形化,形体、空间,甚至场地氛围都需要通过这样的图画来进行表达,因为这是一种呈现设计意图的最为便捷的方式,这是独属于建筑师的一种绘画方式。本书就介绍了这样一种绘图的方式,在作者循序渐进的教导中,初学者会发现,掌握这样一种绘画方式,既非毫无规律可循,又是一件饶有兴趣的事情,即使是在电脑技术飞速发展的今天,这种绘画方式仍旧是建筑思维表达的最为有力的方法之一。
有关钢笔画、效果图画法的书籍很多,但与建筑师的最富有职业特点的绘画方式直接相关的书籍却非常之少,相信这本书会对许多建筑师和建筑类专业的学生们有很大的帮助。
本书提供了学习空间绘画这一技艺的指导和建议,并可以使读者充满乐趣地进行实践。草图表达的步骤方法从简单易懂的规则中发展出来,并通过能激发读者兴趣的实例图画进行说明。
建筑思维的草图表达在建筑设计和城市设计过程中扮演着非常重要的角色。空间草图可以作为有形的论据,向业外的人士介绍并展示设计方案的形态构成。
图书目录
						目 录
第一章 空间绘画的“语法”——必要的草图知识 9
第二章 “理智”地速写——愉快而正确地画 57
第三章 画面构成及画面内容的强调——绘画的方法及其效果 65
第四章 结束语:作为绘画语言的空间草图——以实例指导 109
				第一章 空间绘画的“语法”——必要的草图知识 9
第二章 “理智”地速写——愉快而正确地画 57
第三章 画面构成及画面内容的强调——绘画的方法及其效果 65
第四章 结束语:作为绘画语言的空间草图——以实例指导 109
 
				
 
								
 
								
 
								
 
								
 
								
 
								
 
								
 
								
 
								
 
								
 
								
 
								
 
								
 
								
 
								 
 
					 
						 
 
					 
 
					 
 
					 
 
					 
 
					 
 
					 
 
					
 
																		