纵观世界建筑发展史,别墅建筑一直伴随着人类从古到今,而每一种流行风格的形成,均与当时的社会、经济、文化等紧密相联。
现代风格的建筑与传统建筑相比,设计更为注重技术与功能性,有着自己独特的风采和美的意蕴。本书书稿共分为三大章节,首先按部位介绍乡村别墅的通用建房做法,其次介绍了二层别墅设计,然后介绍了三层别墅设计。精选了原创的典型现代风格别墅(自建房),每套别墅均含有外观效果渲染图、平面展示图,以及各项基础图纸信息,包括占地面积、建筑面积、结构形式、层高、开间进深、主体参考造价等,资料翔实,方便住宅设计人员和别墅业主借鉴和参考。
编辑推荐
图书简介
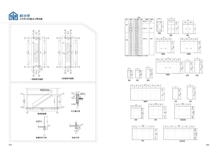
本书案例全部为现代风格的建筑,它注重功能性、经济性和实用性,同时也不乏美观性,更能与现代化、工业化的社会相适应。本书内容丰富、形式多样、涵盖各个不同段面积宅基地、堪称乡村建房百宝箱。每套别墅均展示了精美的渲染后效果图和完整的平面图纸及参考报价、结构形式、主体面积等基本信息。并且精选了几套案例展示了全部的设计图纸,包括平面图、立面图、剖面图、大样图及门窗尺寸数据图,对乡村别墅设计师及业主都具有很好的参考借鉴意义。
图书目录
通用建房做法 004
两层别墅 016
三层别墅 102
两层别墅 016
三层别墅 102






