相对于城市里的高楼大厦,自建别墅的环境更加优美宜人,是一种清新自然的生活方式。此外,自建别墅的建筑风格也更为多样化,书中包含现代、新中式、欧式、美式等风格,且包含南方和北方两种常见的建筑风格,业主可以自由选择根据偏好的风格及层数自由选择。
另外,自建别墅还能提高人们的生活品质。农村自建别墅功能较丰富,可以根据自己的需求和兴趣进行布置,比如设置一个茶室、健身房、书房、休闲区及景观花园等,能够充分发挥自己的创造力和生活情趣。同时,生活在别墅里也意味着拥有更加隐秘的空间,能够避免人群拥挤、噪声的困扰,可以让人们更加享受安静的生活。
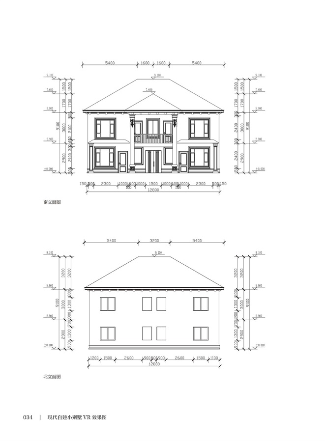
读者可通过扫描书中二维码在线观看VR效果图及立面细节,附赠的CAD原图可提供施工尺寸参考。无论从方案设计还是施工上,都是一本很实用的自建小别墅指南。
编辑推荐
图书简介
本书展示了六十套自建小别墅的外观及平面图,为自建房的业主、设计师及施工人员提供参考。全书分为三部分,一层别墅、二层别墅和三层别墅。每个案例都附有别墅基本情况介绍、不同角度的外观效果图、各层的平面图。除此以外,每个案例还配有二维码,扫码便可看到VR效果的别墅外观图,全景展现别墅各个角度的外观,VR效果图除了可以看外观,还可以看到内部各层的平面设计、各个立面的剖面设计。立体化展示别墅的构造,是自建小别墅的良好参考。
图书目录
一层别墅设计 007
两层别墅设计 019
三层别墅设计 083
两层别墅设计 019
三层别墅设计 083






